$12,500
35 Long Shoals Road, Arden, NC 28704
Commercial Property
Built in 1925
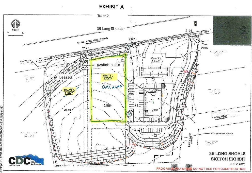
0.91acre lot
—— car garage
$——/sqft
Listed 8 days ago
Property Description
Development Opportunity. This is a portion of the PIN#. 0.91/ac Graded Pad is part of a 6/ac Commercial Development. This is the Middle Lot. Will have access to a newly proposed traffic light of the overall development. Ground Lease is $150,000/year year with increases.
- Listing Status:
- Active
- Listing Office:
- Pulliam Properties, Inc : 828-684-4344
- MLS ID:
- 4308966

- Zoning: IND9644-99-2500-00000
- Restrictions: NA
- Source: carolina
This listing courtesy of Pulliam Properties, Inc
Monthly Payment
$Est. Payment
- Principal & Interest $
- Property Taxes $
- Home Insurance $
- VA Funding Fee $
Location
Schools Nearby
K
Koontz Intermediate School
305 Overlook Rd, Asheville, NC, 28803
Grades 5-6
0.50 miles away
V
Valley Springs Middle School
224 Long Shoals Rd, Arden, NC, 28704
Grades 5-8
0.60 miles away
R
Roberson High School
250 Overlook Rd, Asheville, NC, 28803
Grades 9-12
0.30 miles away